3-к, Алексея Алехина, 14 Показать на карте
Псков
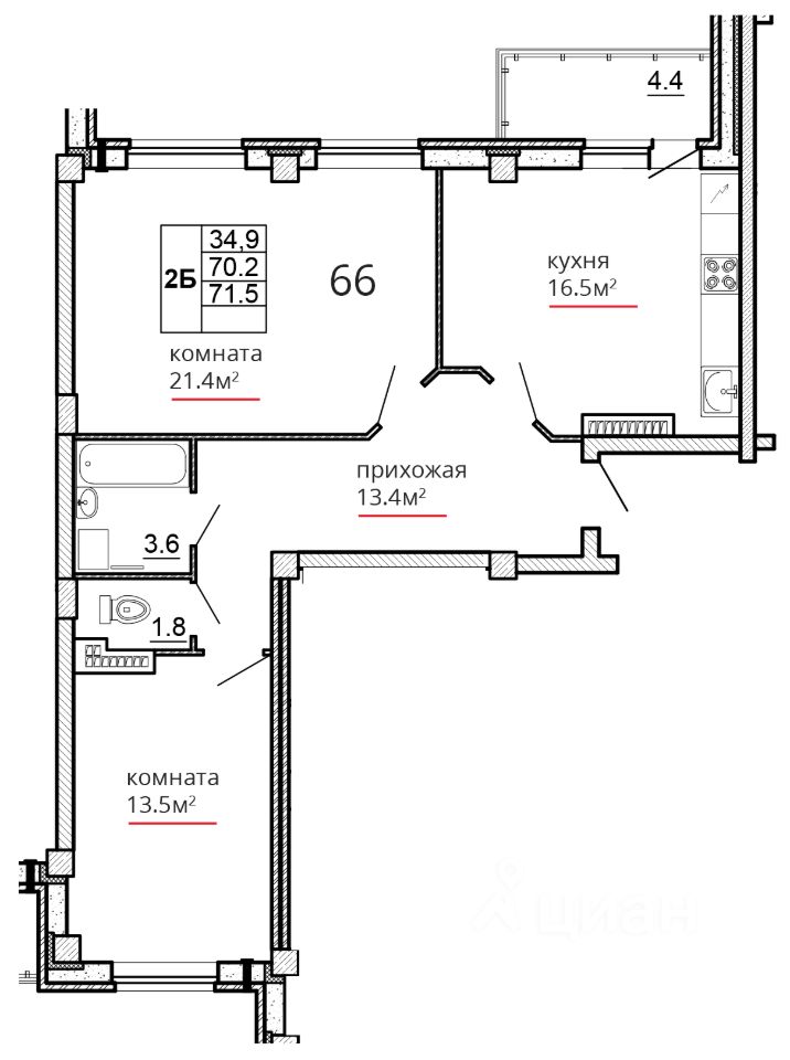
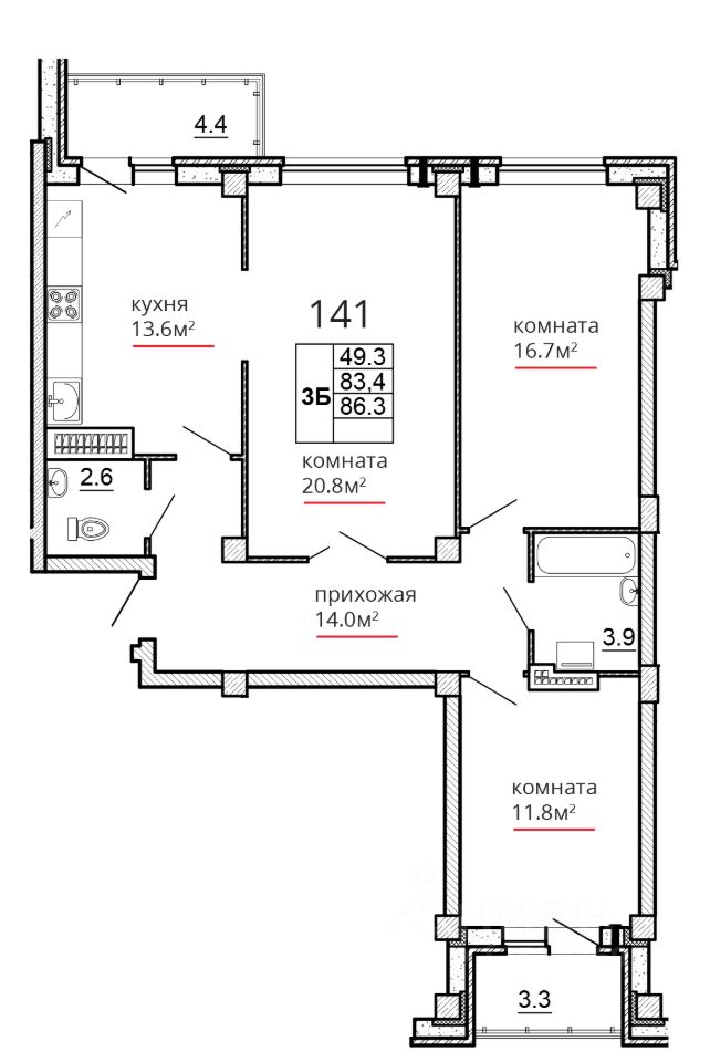
Продается 3-комнатная квартира, 87.00 кв. м, по адресу Россия, Псковская область, г. Псков, ул. Алёхина, 14. Этаж 5/16.Рассрочка 0%- Первый взнос 30% с ежеквартальной оплатой в течении 12 месяцев.- Первый взнос 40% с внесением оставшейся суммы через 6 месяцев.- Первый взнос 50 % с внесением оставшейся суммы через 12 месяцев.Квартира в кирпично-монолитном доме ЖК ''Сити'' от надежного Псковского застройщика ГК ''Реставрационная мастерская''! (дата основания 1946 год)Место:Дом располагается в благоустроенном районе города Пскова. В шаговой доступности есть все:- общеобразовательная школа (во дворе дома),- 2 детских сада ,- магазины и пункты выдачи В настоящее время район продолжает активно развиваться, Дом удачно территориально расположен, рядом Река Великая, зоны отдыха на природе, нет автомобильных пробок, которые свойственны многим районам города.Наши стандарты:- Высота потолков ''в чистоте'' 2,70 м.- Контроль доступа и видеонаблюдение.- Качественные окна и входные металлические двери.- Авторский дизайн мест общего пользования.- Территория полностью благоустроена, большая детская игровая зона на травмо-безопасном покрытии.- Возможно выполнение отделки ''Под ключ'' по фиксированной цена с гарантией Застройщика (в т.ч. с включением в ипотеку),- Ваши деньги в полной безопасности- оформление в строгом соответствии с ФЗ-214, через эскроу-счета, никаких серых схем!-Помощь в одобрении ипотекиРаботаем:- Ипотека (любая)- Рассрочка- Сертификаты.Квартира продается надежным Застройщиком, - ГК ''Реставрационная мастерская'', 100% гарантия юридической чистоты.Мы всегда готовы обсудить индивидуальные условия.Заходите к нам в центральный офис продаж по адресу: г. Псков, ул. Линейная, д. 3, звоните, пишите, если не ответили сразу- обязательно Вам перезвоним.Вышлем фото и видео, проведем онлайн показ и дистанционноеоформление сделки.На объекте работает офис продаж (предварительная запись)Полное сопровождение Застройщика, все хлопоты берем на себя!
87 м2
5 / 16 этаж
Монолит
- Показать контакты
- Добавить в избранное
87 м2
5 / 16 этаж
Монолит
7 569 000
87 000 /м2
