Если цена в объявлении изменится, мы сразу сообщим вам об этом на электронную почту.
Нажимая «Подписаться», вы соглашаетесь с правилами.
продам 3-к, Дмитрия Яковлева, 38 731 800 ₽
13 янв
Дата публикации объявления
Обн. сегодня
Дата обновления объявления
Спецпредложение
Турбо x8
99 000 ₽/м²
Чистая продажа
Термин "Чистая продажа" означает, что в квартире никто не прописан или
есть куда выписаться и вывезти вещи. Это лучший вариант для покупателя.
Вероятность срыва сделки минимальна.
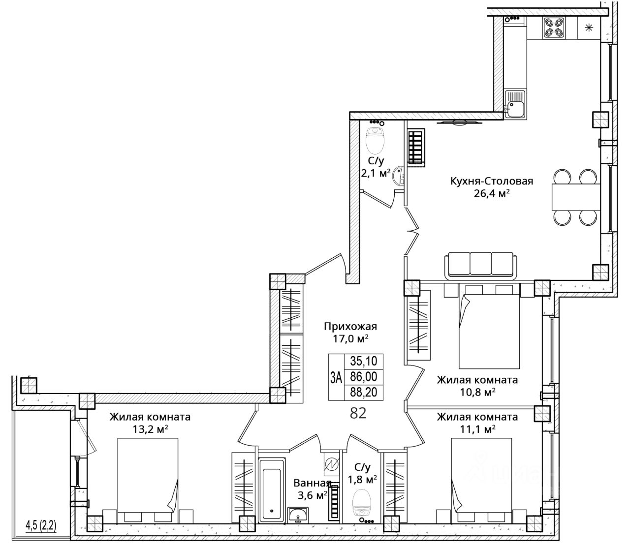
Квартира
Общая площадь88,2 м2
Тип собственностисвидетельство о праве собственности
Продается 3-комнатная квартира, 88.20 кв. м, по адресу Россия, Псковская область, г. Псков, Д.Яковлева, д.3, 3. Этаж 8/10.
Квaртиpa в новом кирпичнo-мoнолитном дoме ЖК ''ТЕТРИС'' ул. Д. Яковлева дом 3 Застройщик — ООО СЗ ''Рмстрой'' Объект возводится надежным генеральным подрядчиком -ООО ''Псковская реставрационная мастерская 1'' 100% гарантия юридической чистоты. Cдача - декабрь 2027г.
Продается 3-комнатная квартира, 88.20 кв. м, по адресу Россия, Псковская область, г. Псков, Д.Яковлева, д.3, 3. Этаж 8/10.
Квaртиpa в новом кирпичнo-мoнолитном дoме ЖК ''ТЕТРИС'' ул. Д. Яковлева дом 3 Застройщик — ООО СЗ ''Рмстрой'' Объект возводится надежным генеральным подрядчиком -ООО ''Псковская реставрационная мастерская 1'' 100% гарантия юридической чистоты. Cдача - декабрь 2027г.
Место: Жилой дом располагается в самом популярном и развитом районе Пскова ''Завеличье'', всё в пешей доступности: - Школа - Детский сад - ТЦ ''Фьорд Плаза'', ''Лента'', ''Лемана про'' - Спортивный комплекс ''Ледовый дворец''
Отличительные особенности: - Авторский дизайн входных групп и придомовой территории, - Видеонаблюдение и контроль доступа, - Горизонтальная разводка отопления с индивидуальным прибором учета и регулировкой в каждой квартире. - Высококачественные окна и входные двери, - Возможно выполнение отделки ''Под ключ'' по фиксированной цене с гарантией Застройщика (в т.ч. с включением в ипотеку), - Ваши деньги в полной безопасности- оформление в строгом соответствии с ФЗ- 214, через эскроу-счета, никаких серых схем! - Помощь в одобрении ипотеки Работаем: -Ипотека (любая) -Сертификаты. Мы всегда готовы обсудить индивидуальные условия. Заходите к нам в центральный офис продаж по адресу: г. Псков, ул. Линейная, д. 3. Звоните, пишите, если не ответили сразу- обязательно Вам перезвоним. Вышлем фото и видео, проведем дистанционное оформление сделки. Полное сопровождение Застройщика, все хлопоты берем на себя!