13 янв
Обн. сегодня
Новостройка, 4 кв. 2027
Продам 3-к, Дмитрия Яковлева, 3
д. Борисовичи
8 626 000 ₽95 000 ₽ за м²
Чистая продажа
Квартира
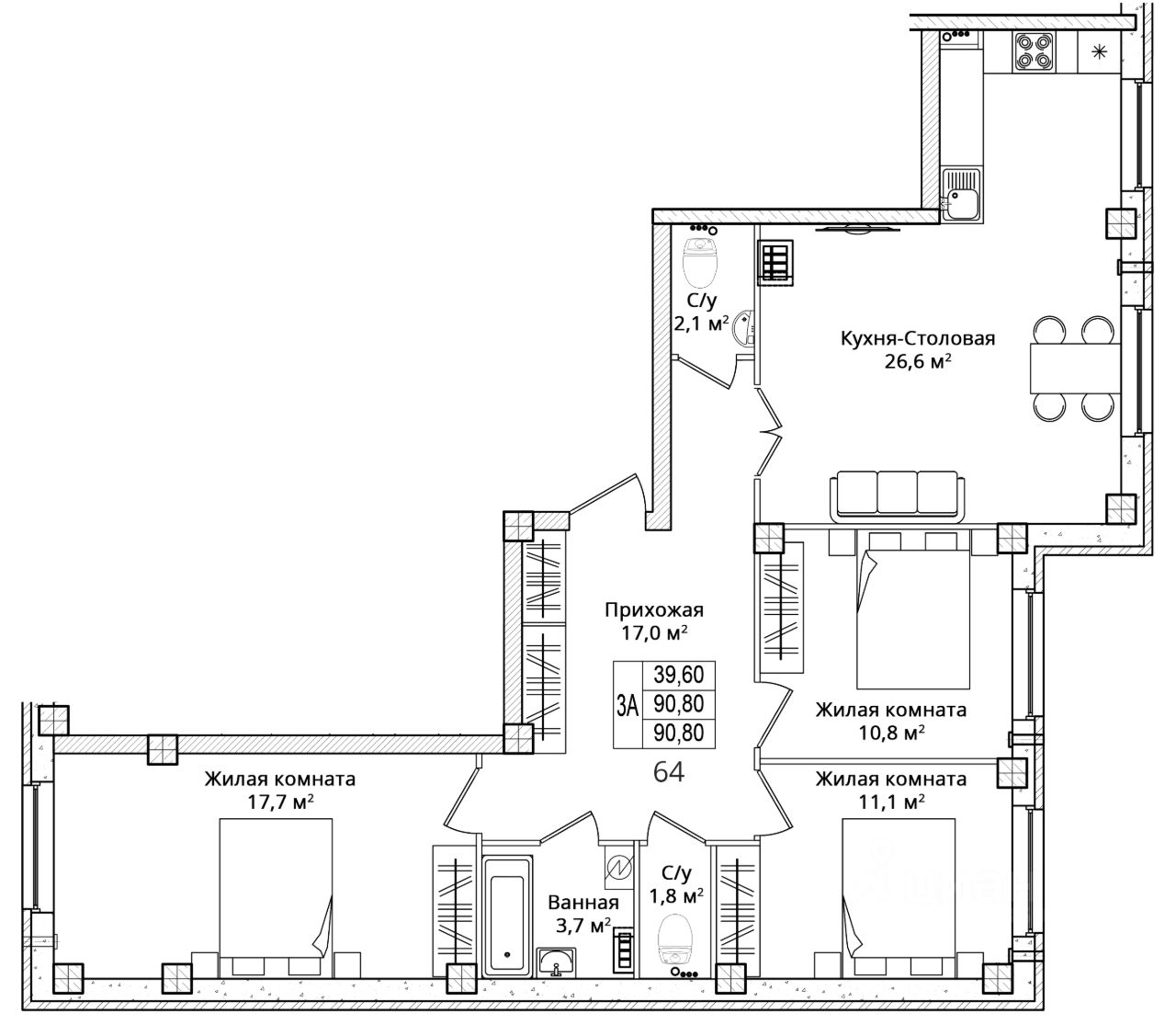
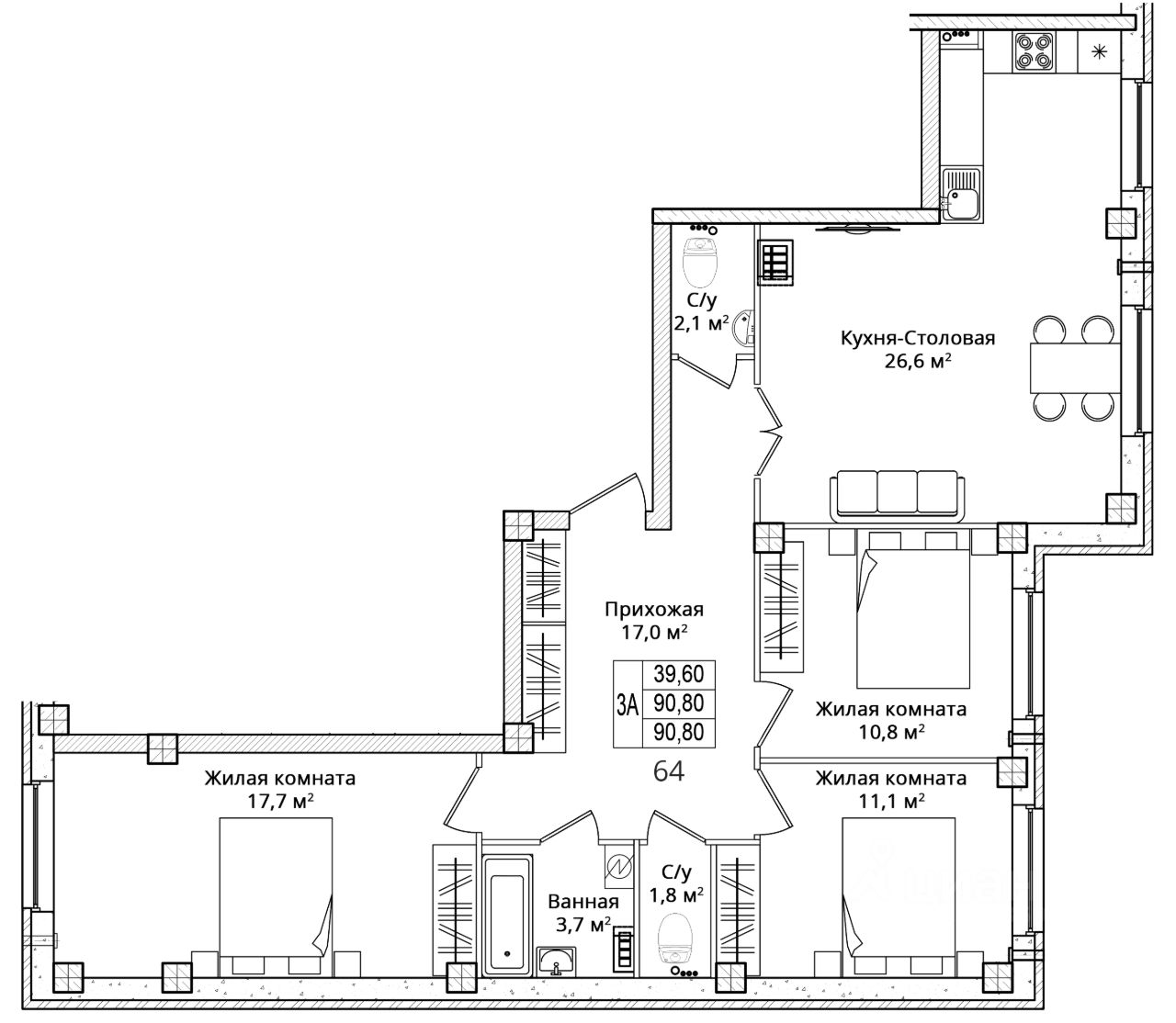
- Общая площадь90 м²
- Жилая площадь39 м²
- Тип собственностисвидетельство о праве собственности
Дом
- Срок сдачи4 кв. 2027
- Этаж5 из 10
- Материал домакирпич - монолит
Описание
Продается 3-комнатная квартира, 90.80 кв. м, по адресу Россия, Псковская область, г. Псков, Д.Яковлева, д.3, 3. Этаж 5/10.
Квaртиpa в новом кирпичнo-мoнолитном дoме ЖК ''ТЕТРИС'' ул. Д.
Контакты
Застройщик
Реставрационная мастерская
Внешний пользователь
№116574140
Ипотечный калькулятор
Стоимость
₽
Первый взнос
₽
Срок кредита
лет
Процентная ставка
Проц. ставка
%
Ежемесячный платеж
64 795 ₽
Мин. доход
117 809 ₽
Сумма кредита
7 332 100 ₽
Один запрос в 8 банков
+2
Узнайте за 10 минут, какую сумму кредита вам одобрят банки




