Если цена в объявлении изменится, мы сразу сообщим вам об этом на электронную почту.
Нажимая «Подписаться», вы соглашаетесь с правилами.
продам 2-к, Юбилейная, 457 900 000 ₽
21 окт
Дата публикации объявления
Обн. 28 мар
Дата обновления объявления
5
Количество просмотров (+ просмотры за сегодня)
97 291 ₽/м²
Чистая продажа
Термин "Чистая продажа" означает, что в квартире никто не прописан или
есть куда выписаться и вывезти вещи. Это лучший вариант для покупателя.
Вероятность срыва сделки минимальна.
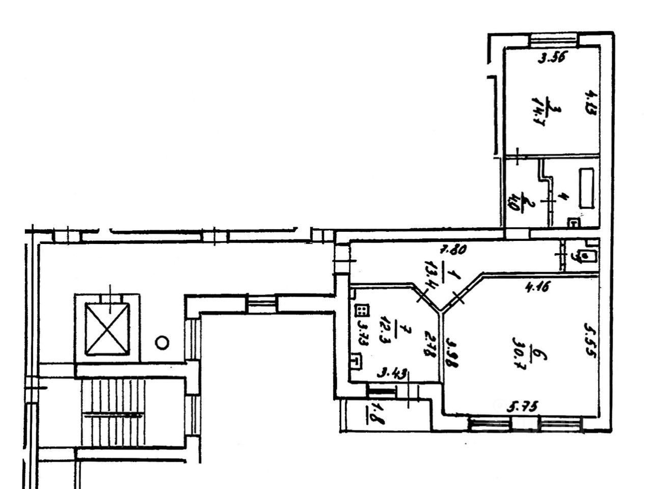
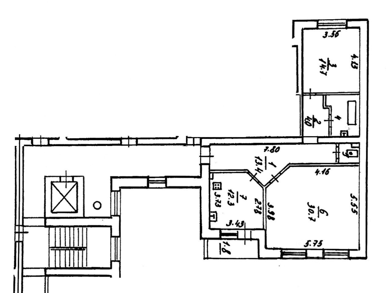
Крупногабаритная двухкомнатная квартира в кирпичном доме повышенной комфортности, 2007 года постройки, Юбилейная 45, восьмой этаж девятиэтажного дома, грузо-пассажирский лифт, видеонаблюдение, парковка возле дома за шлагбаумом. Общая площадь - 83 кв м (лоджия - 1,8) плюс большой тамбур на три квартиры (в тамбуре имеются вместительные шкафы для хранения). Жилая площадь- 45,4 кв м, кухня - 12,3 кв м, выход на лоджию из кухни. Санузел раздельный, ванная - 4,9 кв м, туалет - 1,5 кв м. Возле лифта имеется кладовка под ключ на несколько квартир. Просторный холл в подъезде, установлен домофон. В квартире косметический ремонт. Окна выходят на разные стороны- восточную и западную.
Крупногабаритная двухкомнатная квартира в кирпичном доме повышенной комфортности, 2007 года постройки, Юбилейная 45, восьмой этаж девятиэтажного дома, грузо-пассажирский лифт, видеонаблюдение, парковка возле дома за шлагбаумом. Общая площадь - 83 кв м (лоджия - 1,8) плюс большой тамбур на три квартиры (в тамбуре имеются вместительные шкафы для хранения). Жилая площадь- 45,4 кв м, кухня - 12,3 кв м, выход на лоджию из кухни. Санузел раздельный, ванная - 4,9 кв м, туалет - 1,5 кв м. Возле лифта имеется кладовка под ключ на несколько квартир. Просторный холл в подъезде, установлен домофон. В квартире косметический ремонт. Окна выходят на разные стороны- восточную и западную. Дом расположен в одном из лучших районов города с развитой инфраструктурой, рядом новая гимназия, детский сад, в соседнем доме филиал поликлиники, магазины, автобусное сообщение. Вокруг дома ухоженная территория с клумбами и деревьями. Торг