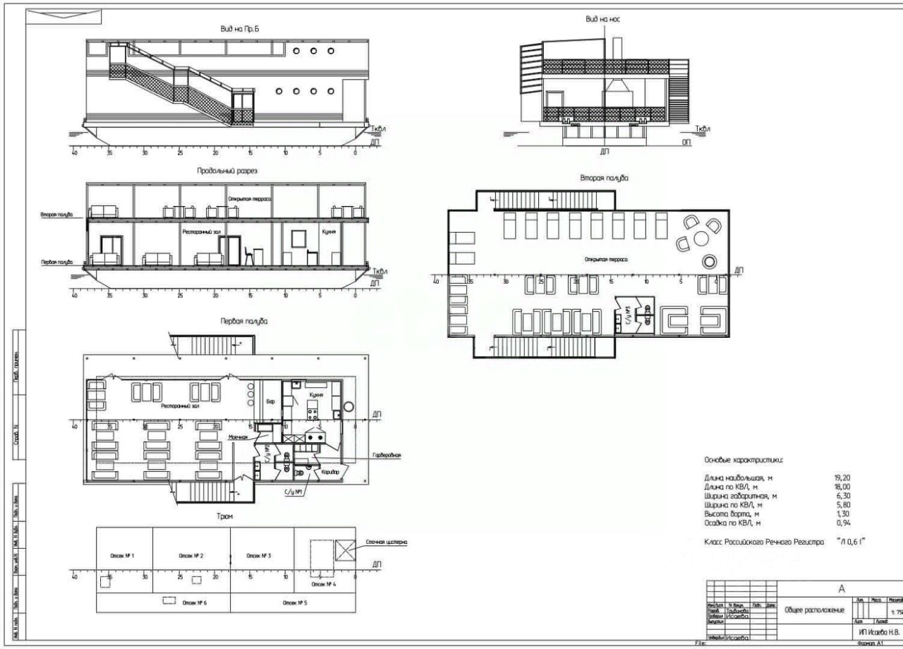
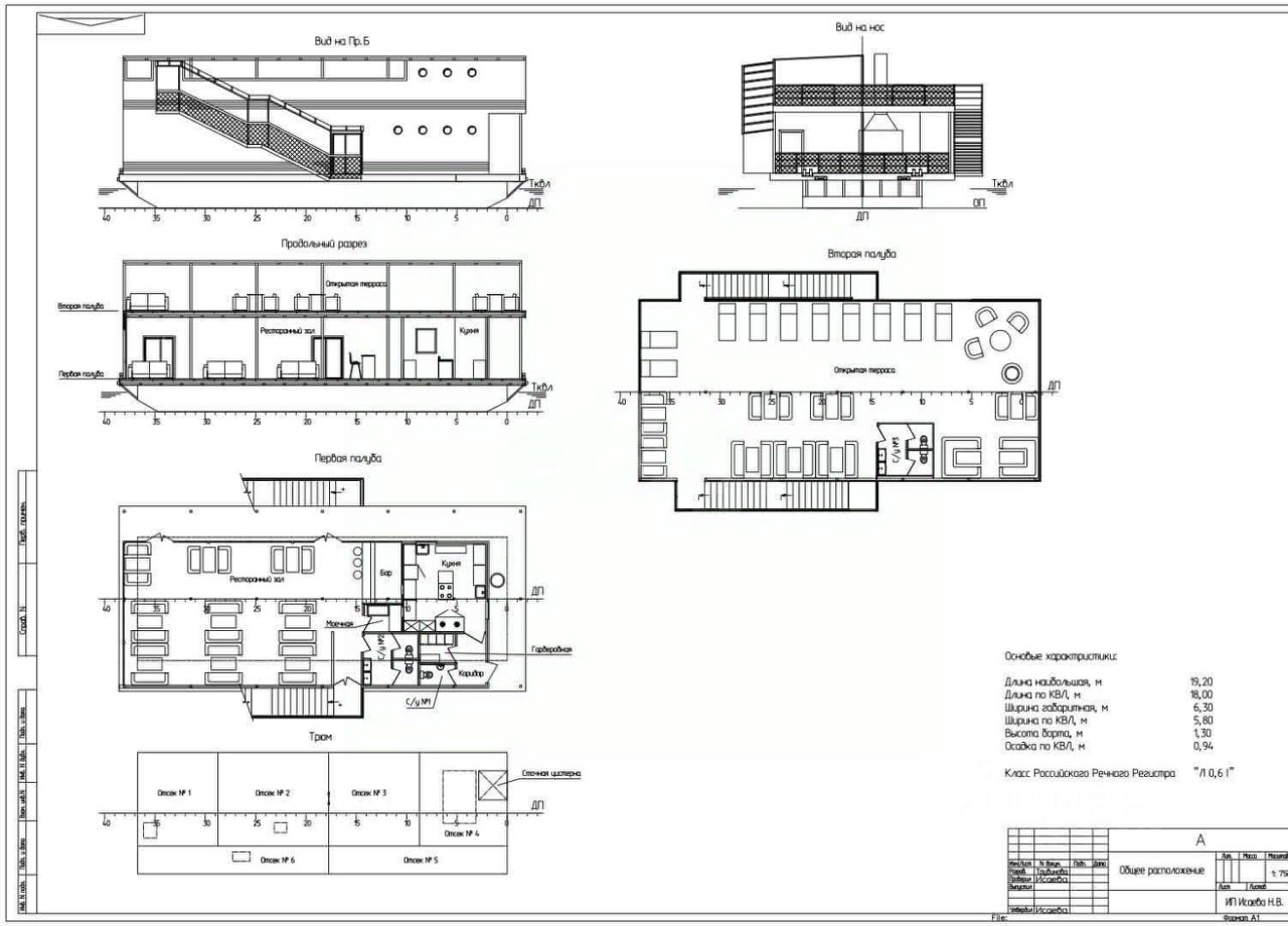
Предлагаем к продаже уникальный объект - водное кафе ''Чайка''. Подобные объекты популярны в городах, расположенных на водоемах. Кафе ''Чайка'' пользуется доверием и популярностью большого количества жителей и гостей города. Плавучий объект официально зарегистрирован в Российском речном реестре. Имеются все необходимые для ведения бизнеса согласования и документы. Официально оформлена швартовка к берегу на туристическом трафике - возле Красноармейской набережной. Также обеспечена возможность стоянки плавсредства. Объект подключается к центральным городским сетям водоснабжения, канализации, электрификации - имеются все необходимы договоры с ресурсоснабжающими организациями. ''Чайка'' имеет две палубы и трюм. Понтоны для удобного доступа на объект с берега.
Предлагаем к продаже уникальный объект - водное кафе ''Чайка''. Подобные объекты популярны в городах, расположенных на водоемах. Кафе ''Чайка'' пользуется доверием и популярностью большого количества жителей и гостей города. Плавучий объект официально зарегистрирован в Российском речном реестре. Имеются все необходимые для ведения бизнеса согласования и документы. Официально оформлена швартовка к берегу на туристическом трафике - возле Красноармейской набережной. Также обеспечена возможность стоянки плавсредства. Объект подключается к центральным городским сетям водоснабжения, канализации, электрификации - имеются все необходимы договоры с ресурсоснабжающими организациями. ''Чайка'' имеет две палубы и трюм. Понтоны для удобного доступа на объект с берега. Комфортное размещение гостей производится как в закрытых помещениях, так и на открытой палубе или под навесом (в кабинках). На палубах располагаются кухня, бар, зона для персонала, санузлы и места для размещения посетителей (столы, стулья, кресла, диванчики, шезлонги и т.д.) Загрузка палуб основного плавсредства - 71 человек. Бизнес абсолютно рабочий, доходный. На объекте проводится регулярно косметический ремонт и обновление интерьера, все поддерживается в надлежащем рабочем состоянии и имеет привлекательный вид. Кафе продается полностью готовое к эксплуатации - со всем наполнением, мебелью, оборудованием, а также готовы первое время курировать ведение бизнеса для избежания провалов в доходности и потоке клиентов, при этом можем передать многолетний опыт работы и специфику деятельности. Так же, объект может быть перепрофилирован в отель на воде. Звоните, договоримся о встрече, просмотре и обсудим все интересующие вопросы.