Если цена в объявлении изменится, мы сразу сообщим вам об этом на электронную почту.
Нажимая «Подписаться», вы соглашаетесь с правилами.
продам 2-к, Алексея Алехина, 146 562 000 ₽
11 июля 2025
Дата публикации объявления
Обн. 11 мая
Дата обновления объявления
Спецпредложение
Турбо x8
85 000 ₽/м²
Чистая продажа
Термин "Чистая продажа" означает, что в квартире никто не прописан или
есть куда выписаться и вывезти вещи. Это лучший вариант для покупателя.
Вероятность срыва сделки минимальна.
Квартира
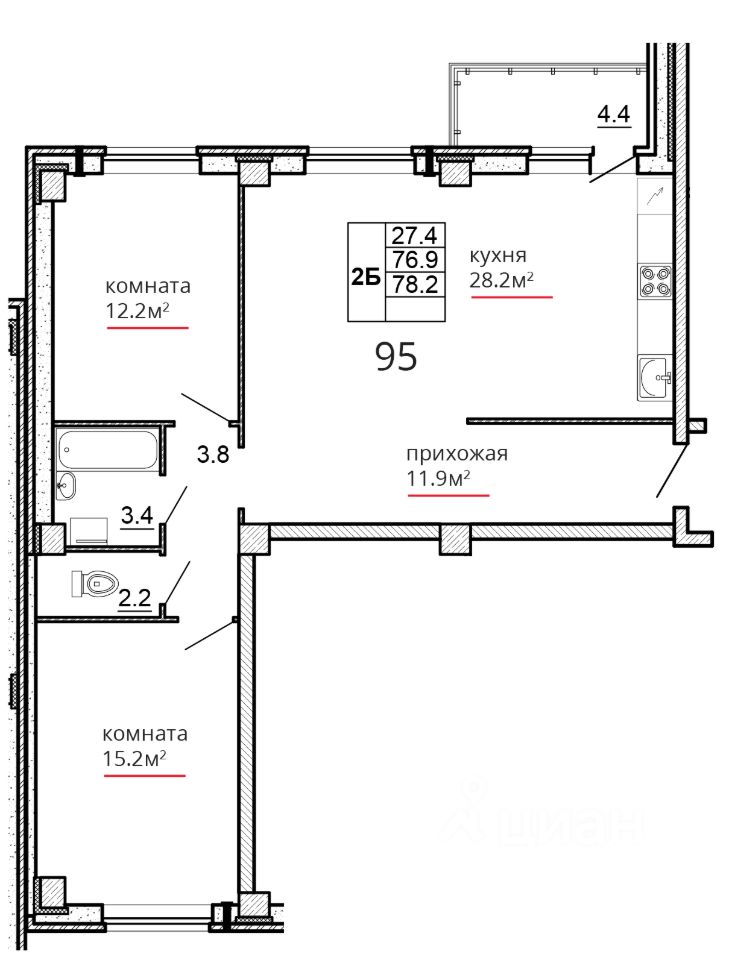
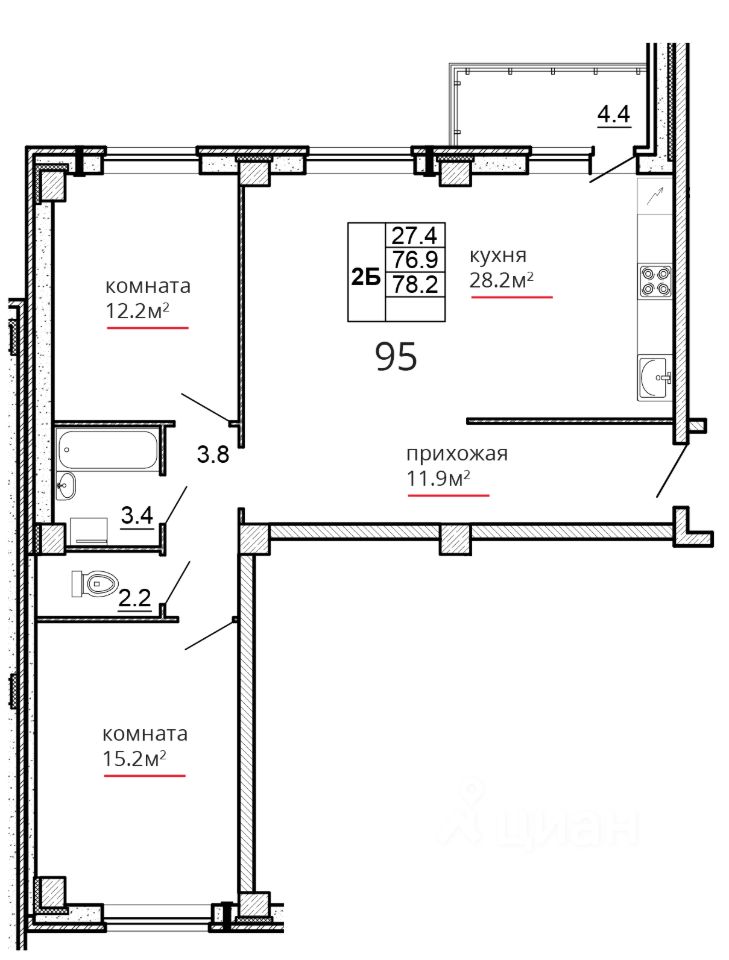
Общая площадь77,2 м2
Жилая площадь26,6 м2
Кухня28,2 м2
Тип собственностисвидетельство о праве собственности
Продается 2-комнатная квартира, 77.20 кв. м, по адресу Россия, Псковская область, г. Псков, ул. Алёхина, 14. Этаж 2/16.
Рассрочка без процентов и переплат:
- Первый взнос всего 80 000 т.р. - остальная сумма — ровно через 6 месяцев Данная акция совместима с последующей ипотекой!
Квартира в кирпично-монолитном доме ЖК ''Сити'' от надежного Псковского застройщика ГК ''Реставрационная мастерская''! (дата основания 1946 год)
Место: Дом располагается в благоустроенном районе города Пскова.
Продается 2-комнатная квартира, 77.20 кв. м, по адресу Россия, Псковская область, г. Псков, ул. Алёхина, 14. Этаж 2/16.
Рассрочка без процентов и переплат:
- Первый взнос всего 80 000 т.р. - остальная сумма — ровно через 6 месяцев Данная акция совместима с последующей ипотекой!
Квартира в кирпично-монолитном доме ЖК ''Сити'' от надежного Псковского застройщика ГК ''Реставрационная мастерская''! (дата основания 1946 год)
Место: Дом располагается в благоустроенном районе города Пскова. В шаговой доступности есть все: - общеобразовательная школа (во дворе дома), - 2 детских сада , - магазины и пункты выдачи
В настоящее время район продолжает активно развиваться, Дом удачно территориально расположен: рядом Река Великая, зоны отдыха на природе, нет автомобильных пробок, которые свойственны многим районам города.
Наши стандарты: - Высота потолков ''в чистоте'' 2,70 м. - Контроль доступа и видеонаблюдение. - Качественные окна и входные металлические двери. - Авторский дизайн входной группы и придомовой территории. - Территория полностью благоустроена, большая детская игровая зона на травмо-безопасном покрытии. - Возможно выполнение отделки ''Под ключ'' по фиксированной цене с гарантией Застройщика (в т.ч. с включением в ипотеку), - Ваши деньги в полной безопасности- оформление в строгом соответствии с ФЗ- 214, через эскроу-счета, никаких серых схем! -Помощь в одобрении ипотеки
Мы всегда готовы обсудить индивидуальные условия. Заходите к нам в центральный офис продаж по адресу: г. Псков, ул. Линейная, д. 3. Звоните, пишите, если не ответили сразу- обязательно Вам перезвоним.
Вышлем фото и видео, дистанционное оформление сделки.
Полное сопровождение Застройщика, все хлопоты берем на себя!