Торговые площади
Рижский проспект, 51 Показать на карте
Рижский проспект, 51 Показать на карте
Псков
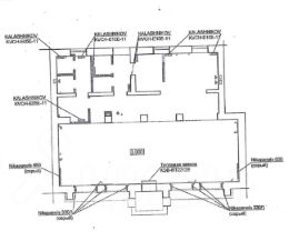
Сдается в аренду помещение на первой линии Рижского проспекта с отдельным входом. Подойдет для открытия аптеки, небольшой парикмахерской, косметологического кабинета, для организации детского досуга и др. В помещении есть санузел. Очень хороший автомобильный и пешеходный трафик. Рядом остановки общественного транспорта. Не упустите возможность для своего бизнеса! Позвоните, будем рады показать вам и рассказать о помещении. Код пользователя: 98126Номер в базе: 11951861
56 м2
- Показать контакты
- Добавить в избранное
56 м2
130 000 /мес.
2 321 /м2
