2-к, Гражданская, 12 Показать на карте
Псков
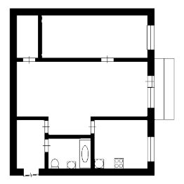
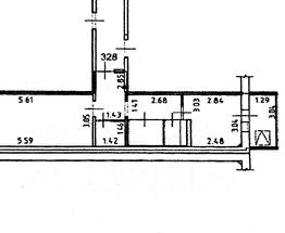
Продается уютная и светлая 2-комнатная квартира в самом сердце города Псков на улице Гражданская! Эта квартира площадью 37,4 кв. м. расположена на 3-м этаже пятиэтажного дома и идеально подходит как для комфортного проживания, так и для выгодного вложения.Квартира отличается теплотой и светом благодаря современным пластиковым окнам и железной входной двери. Центральное холодное водоснабжение и газ обеспечивают все необходимые удобства. Установлены приборы учета воды и газа, а горячая вода подается через новую газовую колонку, что значительно снижает коммунальные расходы.В квартире выполнена большая часть капитального ремонта: заменена электропроводка, установлен новый счетчик, добавлена отдельная линия для бытовой техники на кухне, а полы обновлены по всей площади. Кухня оснащена новым газовым оборудованием и встроенной бытовой техникой, а система очистки воды гарантирует высокое качество. Электрический духовой шкаф можно легко заменить на газовый, если вы предпочитаете, поставлены специальные переходники.Вы сможете завершить косметический ремонт по своему вкусу, добавив индивидуальности и стиля. В качестве приятного бонуса новому владельцу остается вся мебель и техника, что позволит вам сразу же комфортно обустроиться.Подъезд всегда чистый, а соседи дружелюбные и отзывчивые. Во дворе достаточно парковочных мест, что является важным преимуществом для автолюбителей. Все необходимые объекты инфраструктуры находятся в шаговой доступности: автобусная остановка, школы и детские сады, сетевые магазины все это сделает вашу жизнь максимально удобной.Квартира без долгов и обременений, возможны любые виды расчетов. Документы готовы, мы готовы показать вам квартиру в удобное для вас время. Реальному покупателю предусмотрен хороший торг при осмотре. Не упустите шанс стать владельцем этой замечательной квартиры! Звоните прямо сейчас! Код пользователя: 189462Номер в базе: 6807503
37 м2
3 / 5 этаж
Кирпич
- Показать контакты
- Добавить в избранное
37 м2
3 / 5 этаж
Кирпич
4 400 000
117 647 /м2
