3-к, Дмитрия Яковлева, 3 Показать на карте
д. Борисовичи
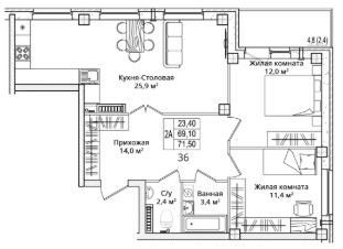
Продается 3-комнатная квартира, 94.50 кв. м, по адресу Россия, Псковская область, г. Псков, Д.Яковлева, д.3, . Этаж 5/10.Квaртиpa в новом кирпичнo-мoнолитном дoме ЖК ''ТЕТРИС'' ул. Д. Яковлева дом 3Застройщик — ООО СЗ ''Рмстрой''Объект возводится надежным генеральным подрядчиком -ООО ''Псковская реставрационная мастерская 1''100% гарантия юридической чистоты.Cдача - декабрь 2027г.Место:Жилой дом располагается в самом популярном и развитом районе Пскова ''Завеличье'', всё в пешей доступности:- Две новых школы- Детский сад - ТЦ ''Фьорд Плаза'', ''Лента'', ''Лемана про'' - Спортивный комплекс ''Ледовый дворец''Отличительные особенности:- Авторский дизайн мест общего пользования и придомовой территории,- Видеонаблюдение и контроль доступа,- Горизонтальная разводка отопления с индивидуальным прибором учета и регулировкой в каждой квартире.- Высококачественные окна и входные двери,- Возможно выполнение отделки ''Под ключ'' по фиксированной цена с гарантией Застройщика (в т.ч. с включением в ипотеку),- Ваши деньги в полной безопасности- оформление в строгом соответствии с ФЗ-214, через эскроу-счета, никаких серых схем!- Помощь в одобрении ипотекиРаботаем:-Ипотека (любая)-Сертификаты.Мы всегда готовы обсудить индивидуальные условия.Заходите к нам в центральный офис продаж по адресу: г. Псков, ул. Линейная, д. 3, звоните, пишите, если не ответили сразу- обязательно Вам перезвоним.Вышлем фото и видео, проведем дистанционное оформление сделки.Полное сопровождение Застройщика, все хлопоты берем на себя!
94 м2
5 / 10 этаж
Кирпич - монолит
- Показать контакты
- Добавить в избранное
94 м2
5 / 10 этаж
Кирпич - монолит
8 883 000
94 000 /м2
Новостройка,
IV-2027
IV-2027
