2-к, Юности, 10 корп. 2 Показать на карте
Псков
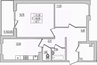
Ипотека снижена с 22% до 5%. Ставка базовой ипотеки от 5%Ставка по семейной ипотеке от 6%Строящийся дом в районе Запсковья, недалеко от ГиперЛенты.Продается 2-комнатная квартира 54 в строящемся доме по адресу Юности, 10.Квартира в строящемся доме по адресу ул. Юности, 10 - это функциональное пространство, где каждый метр работает на комфорт. Идеальный старт для новой жизни.Юности 10 это дом в ЖК ''СМАРТ'', где все квартиры умные.ЖК ''СМАРТ'' не зря получил своё название. Здесь используются умные планировки.Это значит, что каждый метр квартиры используется с пользой:- кухня удобно размещается и не ''съедает'' всё пространство,- остаётся полноценная зона отдыха или спальни,- предусмотрены места для хранения, чтобы не заставлять квартиру шкафами,- комнаты легко обставить мебелью без неудобных углов и узких проходов.В результате квартира кажется более просторной и удобной для жизни, при любой площади.Локация ''СМАРТ''Жилой комплекс расположен в уютном районе с развитой инфраструктурой: рядом школы, детские сады, магазины, торговые центры, остановки транспорта. Всё необходимое рядом с домом. Дом находится в 15 минутах от Гипер Ленты на Труда 54.У вас есть:- Возможность купить квартиру с готовой отделкой или без неё.- Прямая работа с застройщиком с использованием эскроу счетов, т.е. для вас - это безопасные расчёты и сопровождение сделки персональным менеджером вплоть до получения ключей.СМАРТ оправдывает своё название: здесь всё продумано, чтобы вы чувствовали себя дома с первого дня.Ставка базовой ипотеки от 5%, семейная ипотека 6%, военная ипотека, маткапитал, сертификаты переселения. Первоначальный взнос от 20,1%Позвоните нам, и наши менеджеры всё объяснят.
56 м2
10 / 10 этаж
Панель
- Показать контакты
- Добавить в избранное
56 м2
10 / 10 этаж
Панель
5 446 600
96 230 /м2
Новостройка,
IV-2027
IV-2027
